Skip to content. | Skip to navigation

Project sold
Data pubblicazione: 2020 Ultimo aggiornamento: 2020

Gallarate - Minoletti Palace

Piazza Garibaldi - 21013 - Gallarate (VA)

Immersive tour video

Watch the video

Description

The Palazzo Minoletti represents a significant presence for the City of Gallarate and beyond the ministerial constraint, which nonetheless bears witness to the artistic importance. It is considered, through an adequate project of re-use and enhancement, very important to act for its protection and conservation destining it to a use that can bring luster, economy and tourism resources to the entire city and therefore deserves to be preserved and above all used.
The challenge of being able to use the 'reuse ' of the building through an intervention that is not extemporaneous, as happened in the past, but through a shared public/private planning it could certainly be a 'flywheel ' for the economy of the city.

Gallarate

Gallarate is a city and Municipality of Milan metropolitan area, northern Italy, in the Province of Varese. It has a population of around 54 thousand people.
It is the junction of railways to Varese, Laveno and Arona. 10 kilometers to the west are the electric works of Vizzola, where 23,000 hp are derived from the river Ticino. Its territory is crossed by the river Arnetta,and belongs to the Ticino River Natural Park.
The city had a strong textile industry in the first part of the 19th century.

Details

Descrizione

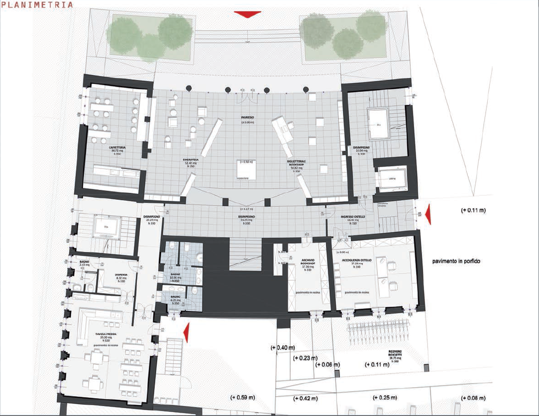
The project involves the conservation of the historical building through reestructuring and enhancement interventions, with the aim of giving a new use to the Palace.

Property

Public

Functions

Tourism/hospitality, Education and training, Retail and services, Sports, leisure, events , Student housing, Healthcare, welfare facilities and senior housing

Target

Operators, Final users, Developers, Investors

Type of operation

Restauro, Redevelopment, Gestione, Rigenerazione urbana e sviluppo

Investment type

Location, Sales, Partnership, Concession

Asset Value/Investment Value

Total property value: € 2.000.000,00; Total investment value: € 4.000.000,00

Competitive advantages

Competitive advantages

Prestigius building; Central position; High profitability.

Data di pubblicazione

2020

Data ultimo aggiornamento

2020

Accessibility

SS33

1 km

Railway Station
Gallarate (VA)

< 1 km

Airport
Milano - Malpensa (VA) - MXP

14 km

If you have any questions, do not hesitate to contact us

Contact us