Salta ai contenuti. | Salta alla navigazione

Project
Data pubblicazione: 2022 Ultimo aggiornamento: 2024

Varese social district - Viva Vivere Varese – Abitare Belforte

Largo Gigli - Via Tonale - 21100 - Varese (VA)

Descrizione

Il progetto consiste in un ampio intervento di rigenerazione urbana ad impatto sociale del quartiere Belforte di Varese (periferia orientale della città), attraverso la realizzazione di un cuore verde, residenziale e culturale nell’area dell’ex Macello civico (3 ettari di proprietà comunale), in continuità e coerenza con le politiche comunali di sviluppo urbano che promuovono diversi interventi in città tra cui il Masterplan delle aree del Comparto Stazioni.
Gli elementi principali del progetto si fondono in 4 distinti ambiti:
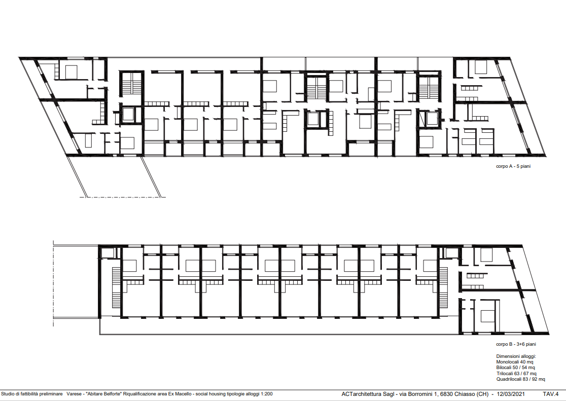
1. un rilevante intervento di Social Housing (ERS o Edilizia Residenziale Sociale) nel settore ad est sul sedime dei capannoni che verranno demoliti e ricostruiti per rendere disponibili alla città fino a 90 alloggi sociali, di cui il 50% in locazione a canoni moderati e il 50% in vendita convenzionata;
2. la Nuova Piazza Gigli nell’area centrale, baricentro riqualificato del comparto e porta d’ingresso dell’intero intervento, comprendente anche i Servizi Integrativi all’Abitare (SIA), i Servizi Locali Urbani (SLU) e le Funzioni Commerciali connesse alla Residenza (FCR) di pertinenza dell’intervento di Social Housing;
3. una completa rifunzionalizzazione dell’ex Macello nel settore a ovest (edifici storici esistenti) incentrata sul tema portante del cibo, che raccoglie l’eredità storica della struttura ed esalta il rapporto di integrazione ed interscambio tra preparazione, somministrazione e recupero delle eccedenze alimentari;
4. un parco pubblico e ciclopedonale che connette il comparto dell’Ex Macello con il rione di Giubiano e con
il centro grazie ad un collegamento di mobilità dolce oltre la ferrovia esistente.

Composizione degli alloggi:
8 monolocali
40 bilocali
31/34 trilocali
8 quadrilocali
Per un totale di 87/90 alloggi

Per la parte abitativa, la gestione sarà quella tipica degli interventi di social housing, i.e. sarà affidata dal soggetto attuatore.
Per la parte dei servizi di interesse pubblico, concentrati nella parte storica e rifunzionalizzata dell’ex Macello, il modello gestionale sarà quello degli usi temporanei. Sono previsti servizi sportivi, sociali e culturali – aggregativi.

Varese

Quella di Varese è la 4ª provincia più popolosa della Lombardia (878.059 abitanti) dopo la città metropolitana di Milano e dopo le province di Brescia e di Bergamo. Caratteristica peculiare della provincia è la policentricità. Il comune di Busto Arsizio (83 008 ab.) è leggermente più popoloso del capoluogo di provincia Varese (79 639); altrettanto importanti sono le città di Gallarate (53 964) e Saronno (38 411). La percentuale di popolazione attiva in rapporto alla popolazione residente nel territorio di riferimento è pari al 63%.
È un importante centro industriale lombardo, nel suo hinterland sono ubicate alcune importanti aziende a livello nazionale e mondiale. 
Le imprese attive sul territorio di Varese sono 6.746, la maggiorparte appartenenti al settore terziario (3.550 – il 52%), seguono quelle secondario (3.087 - 46%) e infine il primario (109 - 2%). Le imprese a partecipazione estera sono: n. 382 (dato provinciale).
Il Comune è attraversato dall'autostrada dei laghi A8 (la prima autostrada a pagamento del mondo), di cui è uno degli estremi assieme a Milano, e da un sistema di tangenziali noto come sistema tangenziale di Varese.
Per quanto riguarda la formazione, troviamo la Scuola Europea di Varese, una delle sole 14 scuole europee esistenti nell'Unione europea e l'unica in Italia. Inoltre l’Università degli studi dell'Insubria, con la quale si evidenzia la collaborazione con l’Amministrazione comunale, e l’Istituto universitario in scienze della mediazione linguistica.
È in atto un intervento di intergenerazione urbana, un progetto di social housing integrato per il quartiere di Biumo Inferiore a Varese (uno studentato) ed è in essere una manifestazione di interesse per la selezione di strategie di sviluppo urbano sostenibile da promuovere attraverso i fondi strutturali e di investimento europei per il periodo 2021-2027 (EX DGR 4151/2020) nel quartiere di San Fermo.
È utile sapere che l'Ente ha adottato misure di riduzione di oneri, tributi e tasse a favore delle attività imprenditoriali.

Dettagli

Proprietà

Pubblica

SLP totale
12.020 m²
Funzione

Residenziale

Target

Operatori, Sviluppatori, Investitori

Valore progetto/investimento

realizzazione alloggi destinati a residenza (non finanziati con il bando PINQUA): 26.069.511 €
FIT OUT alloggi = 7.200 mq x 200 €/mq = 1.440.000 €
FIT OUT spazi a servizi = 4.820 mq x 200 €/mq = 964.000 €

KPI

spazi a servizi durata presunta della convenzione 20 anni
spese gestione spazi a servizi = 4.820 mq x 4 €/mq = 19.280 € all’anno per i primi 10 anni
spese gestione spazi a servizi = 4.820 mq x 8 €/mq = 38.560 € all’anno per i successivi 10 anni
totale presunto spese gestione: 578.400 €
totale complessivo (fit out + spese gestione) = 1.542.400 €
ricavo della gestione degli spazi a servizi = 4.820 mq x 20 €/mq = 96.400 € anno
totale: 96.400 x 20 = 1.928.000 €
reddito operativo (il guadagno derivato dall'investimento fatto) / capitale investito
calcolo roi: (1.928.000 – 1.542.400): 1.542.400 = 0.25
alloggi edilizia a canone moderato durata della convenzione 40 anni
spese gestione spazi residenza = 7.200 mq x 4 €/mq = 28.800 € all’anno per i primi 49 anni
spese gestione spazi residenza = 7.200 mq x 8 €/mq = 57.600 € all’anno per i successivi 50 anni
totale presunto spese gestione: 4.291.200 €
totale complessivo (realizzazione servizi + fit out + spese gestione) = 31.800.711 €
ricavo della gestione degli alloggi: n.ro alloggi: 90 x 4.500 € (canone annuo) = 405.000 €
totale: 315.000 x 99 = 40.095.000 €
reddito operativo (il guadagno derivato dall'investimento fatto) / capitale investito
calcolo roi: (40.095.000 – 31.800.711): 31.800.711 = 0.26

Vantaggi competitivi

Il progetto concerne il recupero di un complesso di edifici di pregio storico architettonico inseriti nel contesto urbano di Belforte, quartiere della città di Varese. Le aree a pochi minuti di distanza a piedi anche dal nuovo comparto delle Stazioni ferroviarie in fase di importante rigenerazione.  La posizione è prossima alle fermate delle principali linee del TPL con frequenti corse (circa ogni 10 minuti nelle ore di punta). La realizzazione di un nuovo importante insediamento residenziale con servizi adiacenti permette di ipotizzare una alta redditività degli spazi di cui la zona è carente.

Data di pubblicazione

2022

Data ultimo aggiornamento

2024

Accessibilità

Uscita
A8 Varese Milano - Varese

2 km

Viale Belforte

< 1 km

Stazione ferroviaria
Varese

1 km

Aeroporto
Milano - Malpensa (VA) - MXP

20 km

Se hai domande, non esitare a contattarci

Contattaci